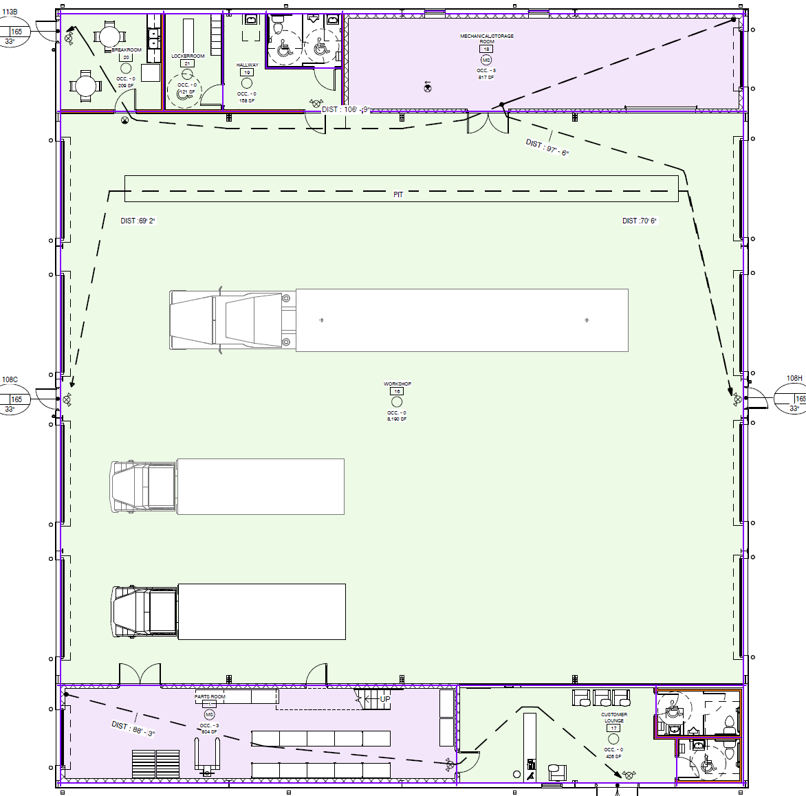
BIR Fleet Services
Conveniently located on Exit 412 off I-40. BIR Developments partnered with the most experienced heavy truck mechanicals in the Knoxville area. Together, the BIR Developments team designed and created a truck shop that ensures any heavy Diesel truck can be serviced and/or repaired in a quick efficient manner. Planning completion Late 2025
4 Bays
Dedicated bay with full length pit